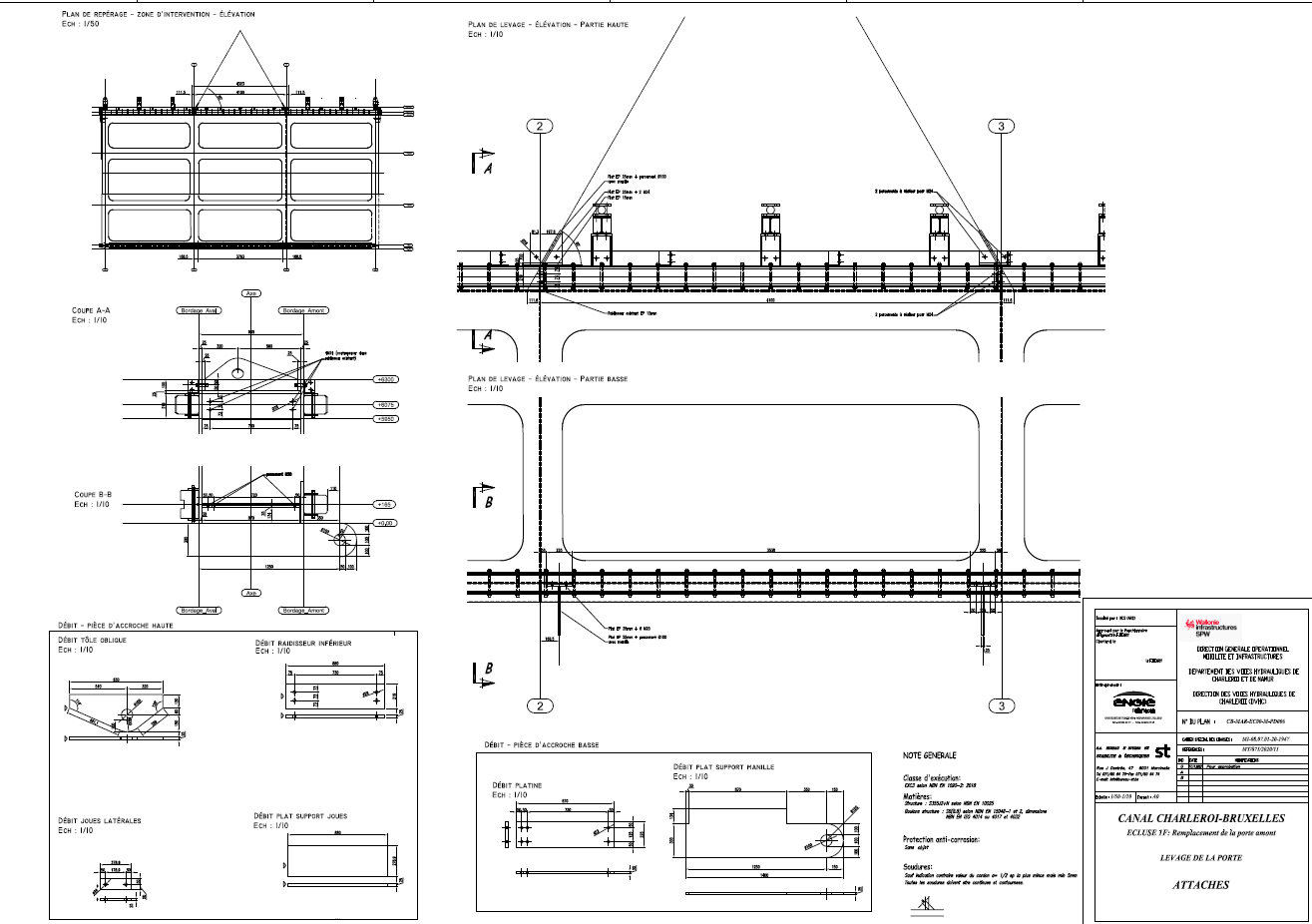
RENOVATION ECLUSE 1F – MARCHIENNE-AU-PONT

Localisation : Marchienne-au-Pont

Maitre d’ouvrage : SPW

Type d’intervention : Rénovation de la porte intermédiaire et aval + remplacement de la parte amont 

Mission : Etude de stabilité, note de calculs et plans de projet

Stade du projet : Mission terminée

ECLUSE – MARCHIENNE-AU-PONT

Boulevard Joseph II, 26a
6000 - Charleroi
Tél. : +32 71 60 64 70
info@bureau-st.be

Besoin d'un renseignement?