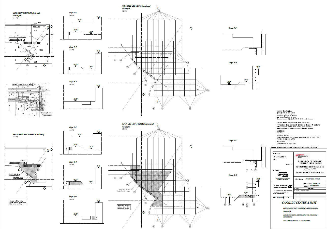
RESTAURATION DES PORTES DE L’ECLUSE D’OBOURG

Localisation : Obourg

Maitre d’ouvrage : SPW

Type d’intervention : Restauration des portes de l’écluses d’Obourg

Mission : Etude de stabilité et plans de projet

Stade du projet : Mission terminée

ECLUSE – OBOURG

Boulevard Joseph II, 26a
6000 - Charleroi
Tél. : +32 71 60 64 70
info@bureau-st.be

Besoin d'un renseignement?