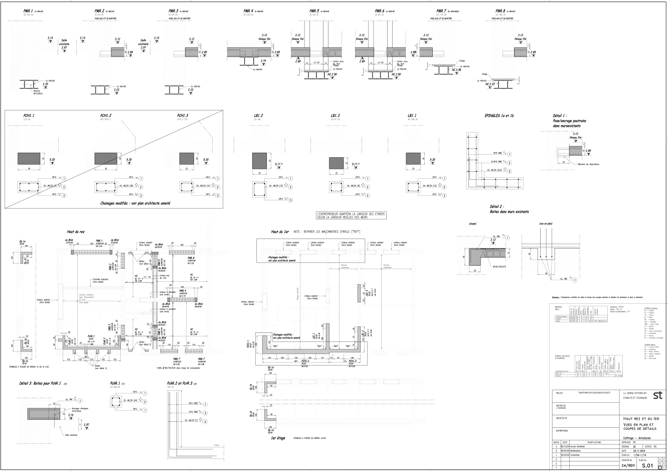
CREATION ET AGRANDISSEMENT DE BAIES DANS UNE MAISON D’HABITATION

Localisation : Gentinnes

Type d’intervention : Création et agrandissement de baies dans une maison d’habitation unifamiliale existante

Montant total des travaux HTVA : 

Budget stabilité :

Mission : Etude de stabilité, poutrelle métallique et plan 

Stade du projet : Mission terminée

MAISON D’HABITATION UNIFAMILIALE – GENTINNES

Boulevard Joseph II, 26a
6000 - Charleroi
Tél. : +32 71 60 64 70
info@bureau-st.be

Besoin d'un renseignement?